Ingenieur / Techniker (m/w/d) gesucht

BIM-Package

Video – Präsentation Elektro Hybrid Premiere

Sprinklerberechnung als Windowsprogramm

Auswertung der BIM Umfrage 2018

Große BIM-Umfrage – beendet –

Neue Tarife für C.A.T.S. Software SaaS

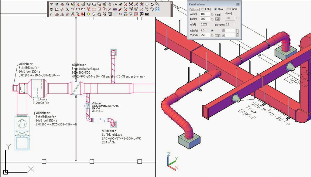
Preiserhöhung Lüftung Grundriss zum 01.01.2018

Ingenieurbüro sucht Techniker/-in und Techn. Zeichner/-in

C.A.T.S. Elektro 3D Konstruktion! Einführungsangebot bis zum 30.09.2017 für Euro 1.200,-

1 2 Weiter
Wunschliste:
☓
Angebot anfordern